Ngôi nhà được cải tạo từ 1 ngôi nhà ống kiểu truyền thống, mặc dù diện tích khá lớn nhưng lại hẹp lòng do vậy, thiết kế cũ khiến căn nhà khá tối và chật hẹp. Với thiết kế mới, ngôi nhà đã trở thành 1 căn hộ hiện đại, rộng, đẹp và vô cùng thoáng đãng.
- Không thể rời mắt khỏi mẫu bàn ăn mặt đá đầy cảm hứng
- Gợi ý bàn ăn mạ PVD hiện đại cho
căn hộ, chung cư
- Trang trí nhà bếp với mẫu bàn ăn mạ vàng được nhiều
người yêu thích
- Chọn bàn ăn mạ titan làm sáng bừng
không gian nhà bếp

Dự án nằm tại Thuận An, đã được cải tạo lại theo hình thức nhà với kiểu cửa kéo Nhật Bản.

Là 1 căn nhà ống dài và sâu, kiến trúc sư đã thiết kế ở vị trí giữa nhà có những khoảng sân nhỏ để cung cấp ánh sáng và thông gió tự nhiên.

Vì vậy một hành lang đã được thiết kế trở thành giao thông nội bộ xuyên suốt trong căn nhà.

Tầng 1 được sử dụng làm phòng khách, bếp và phòng ăn. Với phòng ăn được đặt ở giữa với vị trí kết nối toàn bộ căn nhà.

Ngoài ra, hầu hết các bức tường phụ trong nhà đều được sử dụng bằng kính và theo dạng cửa kéo của Nhật, có thể đóng lại để hoàn thiện các chức năng riêng, hoặc mở rộng theo phong cách mở xuyên suốt.

Phòng ăn với 2 bức tường phụ đều bằng kính là không gian trung tâm trong toàn bộ căn nhà. Căn phòng này nằm giữa hai sân trong và giữa hai gian nhà bếp và phòng khách.

Từ góc bếp nhìn ra hành lang xuyên suốt căn nhà.

Phòng ăn nhìn ra khoảng sân rồi tới nhà bếp cũng với dãy cửa kéo có thể mở rộng đón nắng và gió.

Phòng khách sáng sủa nhờ khoảng sân sau ngập trong nắng, gió.

Cây xanh có ở mọi nơi mang thiên nhiên tràn vào các căn phòng.

Để nhấn mạnh ý nghĩa “mở” trong nhà, các hệ thống kết cấu của nhà đều bằng kính và thép, ngoại trừ phần còn lại là bê tông để đảm bảo an toàn.

Phòng bếp đơn giản nhưng đầy đủ tiện nghi với 2 phần sân bên hông và đằng sau đảm bảo không khí lưu thông và không thiếu ánh sáng tự nhiên.

Bản vẽ căn nhà trước khi được cải tạo.

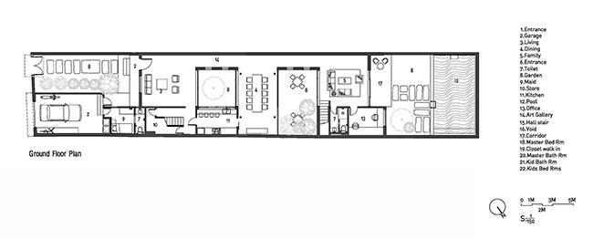
Đây là bản thiết kế mới của căn nhà.

Bản phác thảo của thiết kế mới với toàn bộ tầng 2 là các căn phòng ngủ.

Bản thiết kế mới đã được hoàn thiện đầy đủ và chi tiết.
Hãy Comment chuẩn SEO vừa làm tốt cho site của Bạn vừa không bị GOOGLE phạt. Nếu muốn lấy backlink hãy chèn URL không chèn code gắn text link. Biểu tượng hài hướcEmoticon