Dự án là một tòa nhà nông thôn từ những thập niên 20- 30 của thế kỷ trước đã bị lãng quên lâu ngày và hoàn toàn không phù hợp với bối cảnh xung quanh.
- Không thể rời mắt khỏi mẫu bàn ăn mặt đá đầy cảm hứng
- Gợi ý bàn ăn mạ PVD hiện đại cho
căn hộ, chung cư
- Trang trí nhà bếp với mẫu bàn ăn mạ vàng được nhiều
người yêu thích
- Chọn bàn ăn mạ titan làm sáng bừng
không gian nhà bếp

Tòa nhà cổ này tọa lạc tại Madesimo, Ý, trên một khu đất rộng 243m2, giữa cánh rừng thông xanh bát ngát.

Với bối cảnh xung quanh là những ngôi nhà hoàn toàn mới được sửa lại trên nền một khu đất cổ xưa của một đại gia đình quý tộc.

Toàn bộ tòa nhà phải được thiết kế một cách ăn ý và hòa nhập vào không gian bao xung quanh nó.

Toàn bộ ngôi nhà vẫn dựa trên phần nguyên vật liệu cũ với những bức tường và cầu thang vào sảnh là những phiến đá tự nhiên.

Phần mặt tiền của tòa nhà có ban công tầng 2 được cách điệu thành một chiếc hộp gỗ, nhằm làm giảm bớt độ khô cứng của những bức tường bằng đá.

Vì được cải tạo dựa trên nền tảng của ngôi nhà cũ nên có rất nhiều ô thoáng. Để giữ nguyên hồn xưa cũ của tòa nhà theo ý gia chủ, kiến trúc sư đã cải tạo những ô thoáng này thành cửa sổ và cửa ra vào hẹp với vật liệu mới là kính và gỗ thông.

Vì nằm ở khu vực rất lạnh, vào mùa đông tuyết rơi rất dầy. Nên phần mái nhà phải được thiết kế 2 mái, vừa giữ nhiệt vừa đảm bảo an toàn khi tuyết rơi nặng trên mái nhà.

Mặt phía sau tiếp giáp với phần đất của người khác nên chỉ có thể thiết kế được một ô thoáng khí nhỏ để lưu thông không khí trong nhà.

Toàn bộ tòa nhà, dù rất nhiều phòng ốc, lối đi và được chia thành 2 khu chính cách biệt. Nhưng với thiết kế cải tạo mới, tòa nhà gần như hợp nhất thành một thực thể duy nhất.

Trên mái nhà còn được giữ nguyên ống khói, bởi vẫn có tác dụng khi nấu ăn và sử dụng lò sưởi.

Mặc dù tường là những phiến đá tự nhiên rất dày với mục địch làm mát vào mùa hè và giữ ấm vào mùa đông, nhưng vẫn phải có nhiều ô thoáng để mang ánh sáng, gió tự nhiên vào nhà.

Tầng 1 được lát sàn bằng gỗ tự nhiên rất dày để cách nhiệt.

Toàn bộ tầng 1 được sử dụng làm thành cách phòng chức năng và phòng sinh hoạt chung với đồ nội thất hoàn toàn bằng gỗ thông.

Ngoài sàn nhà, trần của tầng 1 cũng được sử dụng bằng nguyên liệu gỗ tự nhiên.
Cầu thang được thiết kế cách điệu và sơn màu trắng với mục đích khiến cho không gian được thanh thoát hơn.

Cầu thang cũ được làm bằng đá, nhưng qua thời gian một số bậc đã bị hỏng đã được làm lại bằng gỗ thông ăn theo một cách hợp lý với toàn bộ nội thất của ngôi nhà.

Bản phác thảo minh họa hình ảnh của tòa nhà trước khi được cải tạo.

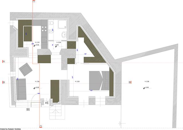
Bản thiết kế chi tiết.
Hãy Comment chuẩn SEO vừa làm tốt cho site của Bạn vừa không bị GOOGLE phạt. Nếu muốn lấy backlink hãy chèn URL không chèn code gắn text link. Biểu tượng hài hướcEmoticon