Thay vì xây dựng kiểu truyền thống, các kiến trúc sư đã tạo nên công trình này bằng cách “lắp ghép” độc đáo.
- Không thể rời mắt khỏi mẫu bàn ăn mặt đá đầy cảm hứng
- Gợi ý bàn ăn mạ PVD hiện đại cho
căn hộ, chung cư
- Trang trí nhà bếp với mẫu bàn ăn mạ vàng được nhiều
người yêu thích
- Chọn bàn ăn mạ titan làm sáng bừng
không gian nhà bếp

Căn nhà 3 tầng có vẻ ngoài hiện đại này nằm ở quận 2, thành phố Hồ Chí Minh.

Thay vì xây dựng theo kiểu truyền thống với gạch, vữa, bê tông…, các kiến trúc sư đã sử dụng những khối thép mô-đun để ghép lại với nhau tạo nên công trình này.

Nhờ thế, cả thời gian thiết kế, thi công chỉ mất có 3 tháng để hoàn thành.

Những ngôi nhà xây dựng theo kiểu mô-đun lắp ghép như thế này đã khá phổ biến ở nước ngoài nhưng với Việt Nam nó vẫn còn là điều khá mới mẻ.

Ưu điểm lớn nhất của phương pháp xây dựng này là tạo sự linh hoạt, dễ dựng và cũng dễ thao tác, nhanh gọn, tiết kiệm thời gian và dễ thay đổi, vận chuyển theo ý muốn.

Lấy cảm hứng từ kiến trúc Pháp, ngôi nhà đa chức năng này được sử dụng làm văn phòng làm việc là chủ yếu.

Thiết kế ngôi nhà như một không gian 3 chiều, đủ để làm việc, đủ mảng xanh để cảm thấy không khí trong lành, đủ thoáng rộng để trưng bày sản phẩm.

Nội thất mang phong cách Đông Dương như hòa vào với kiến trúc Pháp, vừa lạ vừa quen, vừa Âu, vừa Á.

Mặt tiền hoàn toàn bằng kính giúp ngôi nhà luôn ngập tràn ánh sáng tự nhiên, xóa mờ ranh giới giữa trong và ngoài.

Bên trong công trình được trồng khá nhiều cây xanh.

Khu vườn nhỏ tạo cảm giác thân thiện, gần gũi với thiên nhiên.

Nội thất hiện đại.

Kiến trúc đơn giản mà sang trọng.

Khu vực giếng trời

Các phòng làm việc

Khu vườn xanh mát xen giữa công trình.

Khu vực này cũng là một quán cà phê được rất nhiều người yêu thích.

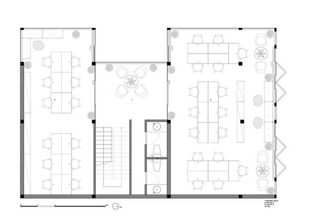
Bản vẽ mặt sàn tầng 1.

Bản vẽ mặt sàn tầng 2.

Bản vẽ mô tả các khu vực chức năng của công trình.
Hãy Comment chuẩn SEO vừa làm tốt cho site của Bạn vừa không bị GOOGLE phạt. Nếu muốn lấy backlink hãy chèn URL không chèn code gắn text link. Biểu tượng hài hướcEmoticon