Các trang tạp chí kiến trúc uy tín như ArchDaily, Homedesign… đều đồng loạt khen ngợi thiết kế nhà ống thông minh đó.
- Không thể rời mắt khỏi mẫu bàn ăn mặt đá đầy cảm hứng
- Gợi ý bàn ăn mạ PVD hiện đại cho
căn hộ, chung cư
- Trang trí nhà bếp với mẫu bàn ăn mạ vàng được nhiều
người yêu thích
- Chọn bàn ăn mạ titan làm sáng bừng
không gian nhà bếp

Ngôi nhà này nằm ở phường Bến Nghé, Thành phố Hồ Chí Minh.

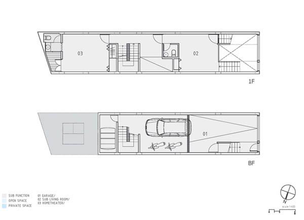
Nó được xây dựng trên mảnh đất có diện tích 4 x 20 m, gồm 1 tầng hầm 1 tầng lửng và 3 tầng chính.

Mặc dù thiết kế kiểu nhà ống nhưng ngôi nhà này lại vô cùng thoáng đãng và gần gũi với thiên nhiên.

Mặc tiền sơn trắng đơn giản, sử dụng hệ lam kim loại giúp thông gió và ánh sáng cho không gian sống.

Mặt tiền và các phòng chức năng của ngôi nhà được ngăn cách bởi 1 khu vườn nhỏ.

Đây cũng chính là giếng trời giúp lấy ánh sáng tự nhiên.

Hệ cửa kính trong suốt giúp gia chủ dễ dàng ngắm cảnh bên ngoài từ các phòng chức năng.

Khoảng thông tầng được bố trí chạy dọc theo chiều dài của ngôi nhà.

Phòng khách được đặt ngay cạnh khu vườn.

Khu vực bàn ăn và các không gian sinh hoạt chung được sắp xếp nằm cạnh khoảng thông tầng.

Cách tấm gỗ cắt lát trang trí độc đáo.

Tầng hầm được sử dụng làm chỗ để xe, kho và phòng kĩ thuật, tách biệt hẳn so với không gian sinh hoạt ở các tầng trên.

Phòng khách được đặt ở tầng lửng, bếp được "nhấc" lên tầng 2.

Các tầng còn lại là nơi nghỉ ngơi, thư giãn của cả gia đình.

Phòng ngủ đơn giản, ấm cúng.

Phòng vệ sinh.

Ngôi nhà còn có riêng một phòng thư giãn ở tầng lửng để nghe nhạc, xem phim hoặc tổ chức các bữa tiệc với bạn bè.

Bản vẽ sơ đồ tầng hầm và tầng lửng

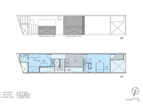
Bản vẽ tầng 2

Bản vẽ tầng 3.
Hãy Comment chuẩn SEO vừa làm tốt cho site của Bạn vừa không bị GOOGLE phạt. Nếu muốn lấy backlink hãy chèn URL không chèn code gắn text link. Biểu tượng hài hướcEmoticon